0
fr
Argos Immobilier Agence
Télécharger la fiche
Prix en baisse

Appartement 2 pièce(s) 1 chambre(s) 43.48 m²

Bordeaux (33300)
200 000 € Référence 25207

A propos de ce bien

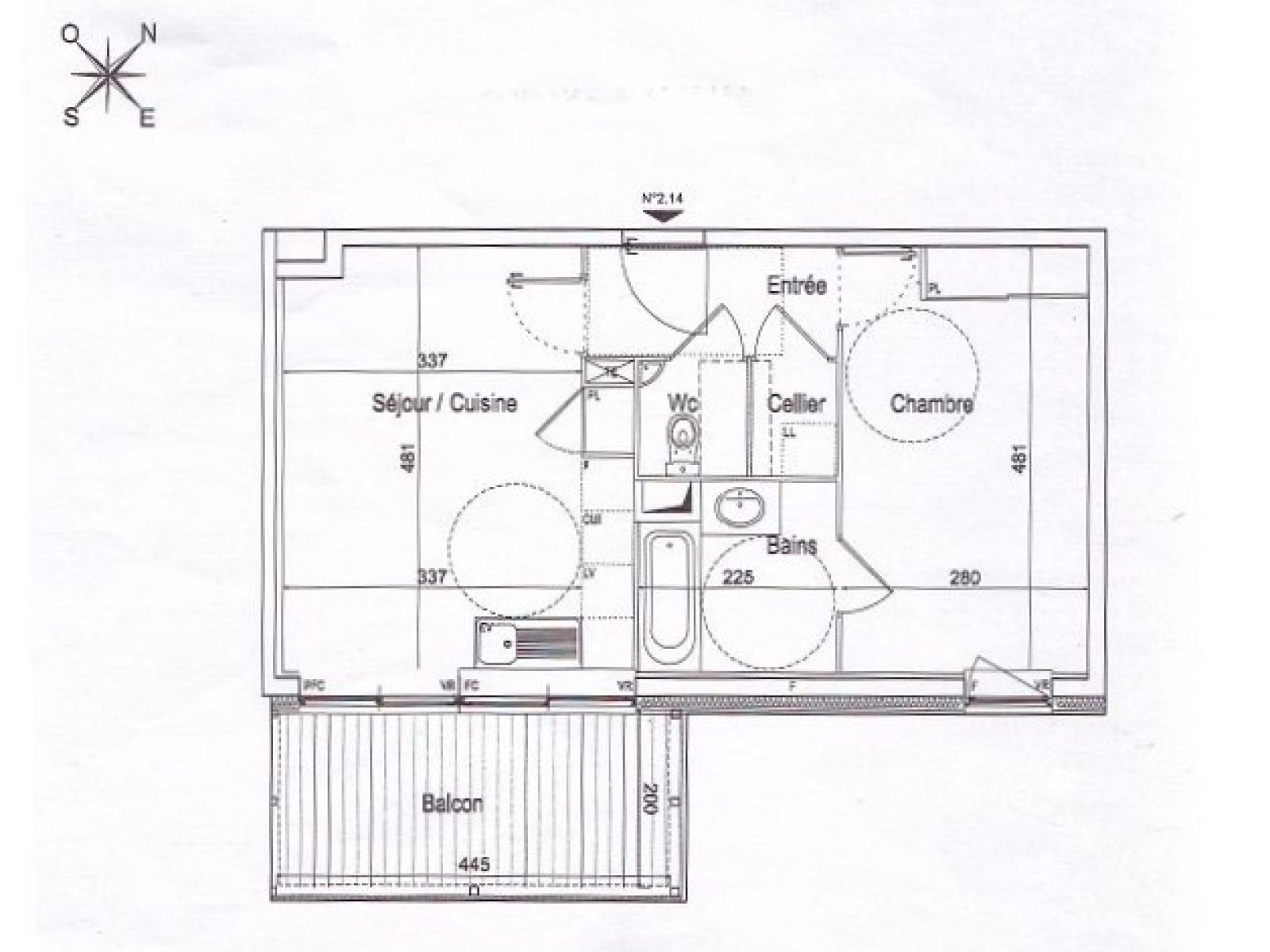
Dans le dynamique quartier Bordeaux Maritime, aux Bassins à Flots, au 5ème et dernier étage d'une résidence de 2013 bien tenue, nous proposons un charmant T2 de plus de 43m2 avec extérieur et place de parking.

Accessible par un ascenseur, l'appartement est très bien conçu et agréable à vivre: nous trouvons une entrée distribuant un pièce de vie lumineuse avec une cuisine aménagée ouverte qui borde la terrasse de plus de 10m2. Nous avons également beaucoup de rangements, un toilette indépendant et une grande chambre de près de 15m2 avec sa salle de bains attenante.

A noter une piscine au sein de la copropriété pour les résidants.

A visiter!

Caractéristiques de ce bien

  • Surface 43,48 m²
  • carrez 43,48 m²
  • séjour 18,32 m²
  • 1 chambre(s)
  • 1 salle(s) de bain
  • construit en 2013
  • cuisine américaine (semi-équipée)
  • Chauffage collectif : radiateur (gaz)
  • 1 niveau(x)
  • 5ème étage
  • 5 étage(s)
  • ascenseur
  • terrasse
  • accès handicapé

Diagnostics énergétiques

DPE
GES

Montant estimé des dépenses annuelles d'énergie pour un usage standard est compris entre 450 € et 660 € . Prix moyens des énergies indexés sur les années 2021, 2022 et 2023 (abonnements compris).

Informations financières

Prix de vente honoraires TTC inclus 200 000 €
Prix de vente honoraires TTC exclus 190 000 €
Honoraires TTC à la charge acquéreur 5,26 %
Charges 173 €

Informations de copropriété

Copropriété Oui
Lot n° 83
Quote part annuelle des charges 2 084 €

Calcul des mensualités

* Champs obligatoires